Prodej bytu 3+1 78 m² – Praha 8 Karlín investiční příležitost s potenciálem do budoucna

Praha, Karlín, Křižíkova, 153/41

11 700 000,- za nemovitost

Kristýna Lindovská

Telefon

Telefon:

604 268 918

Kontaktovat

Finanční kalkulačka

Mám zájem

Popis nemovitosti

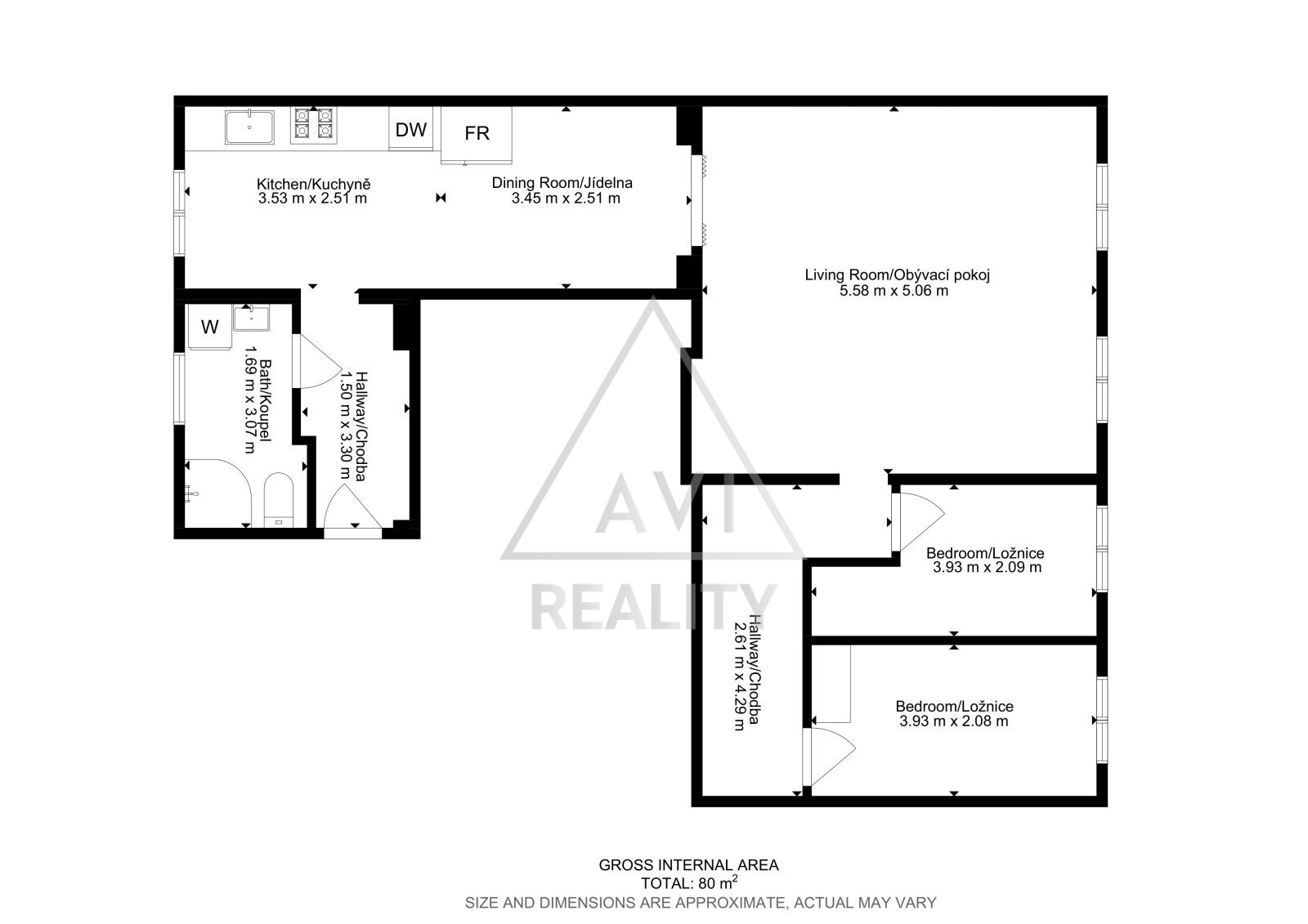
Nabízíme k prodeji prostorný a světlý byt o dispozici 3+1 (původně 2+1) o celkové výměře 78 m², situovaný ve 3. nadzemním podlaží menšího činžovního domu bez výtahu, v atraktivní a žádané lokalitě Praha 8 – Karlín. Cashback ve výši 1.000 000,- Kč. ( po revitalizaci domu od investora)
Dispozice bytu:
Byt prošel částečnou úpravou – z jedné původní místnosti byly vytvořeny dvě menší ložnice. ( viz plánek a fotografie).
Aktuální dispozice nabízí:
Prostorný obývací pokoj s krásnými parketami (28,2 m²)
Kuchyni s jídelní částí (2x 8,7 m²)
Dvě menší ložnice (cca 8 a 8,5 m²)
Koupelnu s oknem (5,1 m²)
Předsíň (4,95 m²)
Chodba (11,2 m²)
Celkový stav bytu je dobrý, avšak nabízí novému majiteli možnost modernizace dle vlastních představ. Vytápění a ohřev vody zajišťuje plynový kotel.
Na podlahách - parkety, koberec, dlažba.

Dům a budoucí potenciál:
Jedná se o komorní dům se šesti bytovými jednotkami a dvěma nebytovými prostory. Aktuálně SVJ jedná s investorem o výstavbě čtyř nových bytů na půdě, výměnou za kompletní revitalizaci celého domu – nový výtah, opravené společné prostory, fasáda, okna i střecha. Každý vlastník bytu obdrží navíc jednorázovou finanční kompenzaci ve výši 1 000 000 Kč. Podpis smlouvy s investorem je plánován do konce tohoto roku.
Součástí domu jsou i sklepní prostory, které jsou v současnosti nevyužívané, ale do budoucna bude jejich zpřístupnění pro jednotlivé vlastníky zajištěno.
Lokalita:
Byt se nachází v srdci Karlína, jedné z nejdynamičtěji se rozvíjejících čtvrtí Prahy. V docházkové vzdálenosti je metro Florenc i Křižíkova, obchody, kavárny, školy, parky a další občanská vybavenost.
Shrnutí- výhody:
Užitná plocha 78 m²
NP bez výtahu (výhledově s výtahem)
Skvělá poloha – Karlín
Investiční příležitost s budoucím bonusem, výplata 1 mil. Kč pro každého vlastníka dle smlouvy s investorem
Jen 6 bytových jednotek v domě, klidný, historický dům s duší

Prohlídky možné po domluvě.Doporučujeme – ideální jak k vlastnímu bydlení, tak jako výhodná investice.

Subtyp nemovitosti

3+1

Vydaný certifikát PENB

G - Mimořádně nehospodárná

Typ certifikátu PENB

č. 264/2020 Sb.

Konstrukce

Cihlová

Město

Praha

Operace

Prodej

Plocha podlahová

78 m2

Plocha užitná

78 m2

Stav objektu

Dobrý

Typ nemovitosti

Byt

Umístění objektu

Klidná část obce

ID nemovitosti

250013

Mapa umístění nemovitosti

3D prohlídka nemovitosti